Business park v Trenčíne v priemyselnom parku (ulica Bratislavská) ponúka priestory vhodné pre showroom, obchodné, administratívne a skladové aktivity.
Poloha parku v blízkosti diaľnice D1 umožňuje výborné spojenie s Bratislavou aj Žilinou.
- Business park ponúka 5 samostatných nájomných jednotiek pre komerčné účely
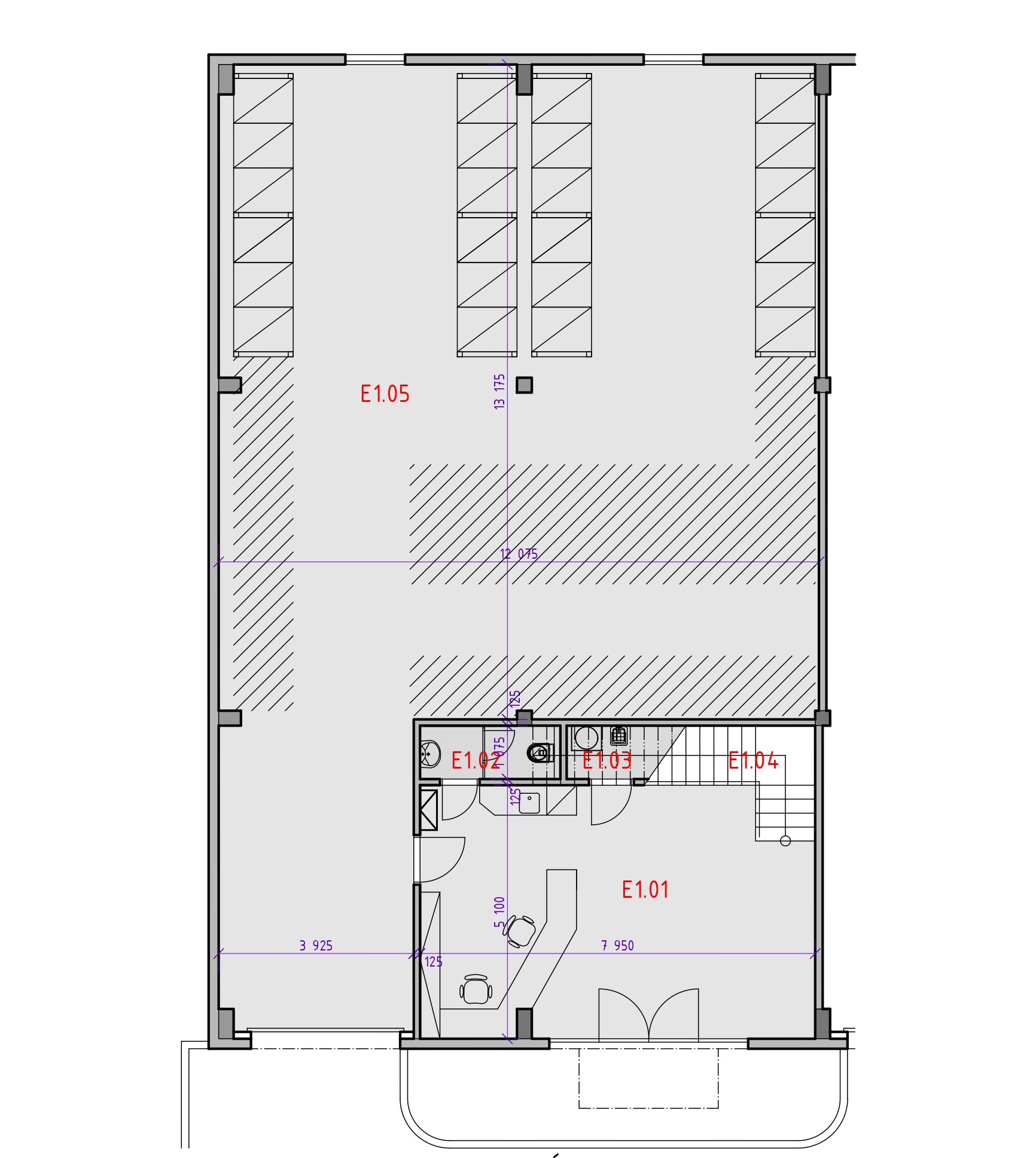
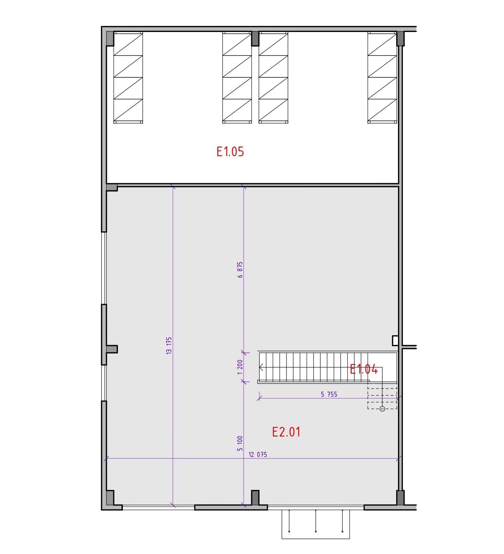
- Jednotka v prednej časti pozostáva z 2 nadzemných podlaží s obchodnou časťou, zadnú časť tvorí jednopodlažný mulifunkčný skladový priestor o svetelnej výške 7,00 metra so sociálnym zariadením
- Predná časť pozostáva z predajných a výstavných priestorov, administratívneho a sociálneho zázemia pre zamestnancov a technickej miestnosti.
- Jednotku je možné využívať ako predajňu, showroom, prevádzku služieb, sklad, priestor pre výrobu a podobne.
- K jednotke prislúcha 5 parkovacích státí 2,5x5m
- V rámci areálu sa ďalej nachádzajú zdieľané parkovacie státia: 6 parkovacích státí pre zamestnancov a návštevníkov, 1 parkovacie státie pre imobilné osoby a manipulačná plocha pozostávajúca zo 4 parkovacích státí 2,5 x 7 m.
- Pozemok je sprístupnený zo severovýchodnej strany po areálovej komunikácii Priemyselného parku, ktorá je pripojená na diaľničný privádzač a na prieťah cesty 1.triedy I/61, ktorá spája business park s mestom.
- Business park sa nachádza na ulici Bratislavská 872, vedľa Facility System Hub.
- Vstup do uzatvoreného areálu je cez bránu na diaľkové ovládanie.
- Energetická trieda stavby je A0. Vykurovacie telesá - teplovodné fancoily, ktoré slúžia na vykurovanie v zime a na chladenie v lete.
- Ohrev TÚV pomocou tepelného čerpadla vzduch/voda s vlastným meračom spotreby.
VÝHODY:
- Ideálna dopravná dostupnosť na diaľnicu D1
- Skladová a obchodno-administratívna časť
- Možnosť riešenia na kľúč podľa požiadaviek
- Výborná funkčnosť celého areálu
- Dostatok parkovacích miest
- Energetická trieda A0. . Vykurovacie telesá - teplovodné fancoily, ktoré slúžia na vykurovanie aj na chladenie
- Optický internet
- Uzavretý areál – vstup cez bránu na diaľkové ovládanie
- V bezprostrednej blízkosti sa nachádza množstvo zaujímavých obchodných a výrobných spoločností
- Všetky inžinierske siete v areáli
- Výhľady na Trenčiansky hrad a zeleň
SVETELNÁ VÝŠKA SKLADU: 7,00 m
PRIESTOR PRE OBCHODY A SLUŽBY CELKOM: 205,77 m²
SKLADOVÝ PRIESTOR: 182,77 m²
PODLAHOVÁ PLOCHA CELKOM: 388,54 m²
CENA PRENÁJMU: dohodou
Obhliadka možná v prac. dni od 8:00 - 16:00 hod.



















